
GET MORE INFORMATION
Bought with Stark Company, REALTORS
$ 397,900
$ 397,900
1081 Tundra Avenue Oregon, WI 53575
3 Beds
2.5 Baths
1,480 SqFt
UPDATED:
Key Details
Sold Price $397,900
Property Type Single Family Home
Sub Type 2 story,Shared Wall/HalfDuplex,New/Never occupied
Listing Status Sold
Purchase Type For Sale
Square Footage 1,480 sqft
Price per Sqft $268
Subdivision Greenview Preserve
MLS Listing ID 1994494
Sold Date 06/16/25
Style National Folk/Farm
Bedrooms 3
Full Baths 2
Half Baths 1
HOA Fees $35/ann
Year Built 2025
Annual Tax Amount $340
Tax Year 2024
Lot Size 3,049 Sqft
Acres 0.07
Property Sub-Type 2 story,Shared Wall/HalfDuplex,New/Never occupied
Property Description
Location
State WI
County Dane
Area Oregon - V
Zoning RESR2Z
Direction US-151 ALT/US-18 ALT, Take exit 139, R on US-151/US-18, turn on Co Hwy MM in traffic circle, L on E Richards, L on Merri-Hill, R on Tundra Ave
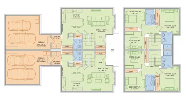
Rooms
Other Rooms Foyer
Basement Full, Sump pump, Stubbed for Bathroom, Radon Mitigation System, Poured concrete foundatn
Bedroom 2 10x12
Bedroom 3 10x11
Kitchen Breakfast bar, Pantry, Kitchen Island, Range/Oven, Refrigerator, Dishwasher, Microwave, Disposal
Interior
Interior Features Wood or sim. wood floor, Walk-in closet(s), Great room, Washer, Dryer, Air cleaner, Water softener inc, Cable available, At Least 1 tub, Other smart features
Heating Forced air, Central air
Cooling Forced air, Central air
Laundry M
Exterior
Exterior Feature Patio
Parking Features 2 car, Attached, Opener, Alley entrance
Garage Spaces 2.0
Building
Lot Description Sidewalk
Water Municipal water, Municipal sewer
Structure Type Vinyl
Schools
Elementary Schools Netherwood Knoll
Middle Schools Oregon
High Schools Oregon
School District Oregon
Others
SqFt Source Builder
Energy Description Natural gas
Pets Allowed Limited home warranty, Restrictions/Covenants, In an association (HOA)

Copyright 2025 South Central Wisconsin MLS Corporation. All rights reserved




