
403 N Julie Court Belleville, WI 53508
5 Beds
3 Baths
2,880 SqFt
UPDATED:
Key Details
Property Type Single Family Home
Sub Type 2 story,Under construction
Listing Status Active
Purchase Type For Sale
Square Footage 2,880 sqft
Price per Sqft $181
Subdivision Bell West
MLS Listing ID 2009802
Style Contemporary
Bedrooms 5
Full Baths 3
Year Built 2025
Annual Tax Amount $53
Tax Year 2024
Lot Size 0.310 Acres
Acres 0.31
Property Sub-Type 2 story,Under construction
Property Description
Location
State WI
County Dane
Area Belleville - V
Zoning Res
Direction Hwy 69, W on Hwy 92, N on Olson Ave, E on James Ave, N on Julie Ct
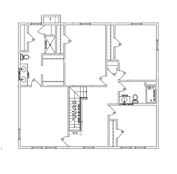
Rooms
Basement Full, Stubbed for Bathroom, Poured concrete foundatn
Bedroom 2 14x13
Bedroom 3 16x12
Bedroom 4 18x11
Bedroom 5 14x12
Kitchen Breakfast bar, Dishwasher, Kitchen Island, Microwave, Pantry, Range/Oven
Interior
Interior Features Wood or sim. wood floor, Walk-in closet(s), Cable available, At Least 1 tub, Split bedrooms
Heating Forced air, Central air
Cooling Forced air, Central air
Fireplaces Number Gas
Inclusions Stainless steel appliances (Stove, microwave, dishwasher), garage opener, blacktop driveway, access walk, seeded yard.
Laundry M
Exterior
Parking Features 3 car, Attached, Opener
Garage Spaces 3.0
Building
Water Municipal water, Municipal sewer
Structure Type Vinyl,Stone
Schools
Elementary Schools Belleville
Middle Schools Belleville
High Schools Belleville
School District Belleville
Others
SqFt Source Builder
Energy Description Natural gas
Pets Allowed Restrictions/Covenants

Copyright 2025 South Central Wisconsin MLS Corporation. All rights reserved







